 
 
      Horeca vetafscheider NEN-EN 1825 gecertificeerd | ondergronds | 2 liter per seconde | Vetafscheiders en andere horeca benodigdheden eenvoudig en snel te bestellen bij HorecaRama! Lees meer.
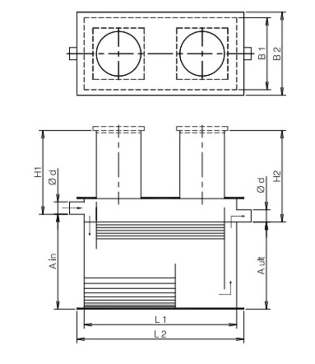
Horeca Vetafscheider gemaakt van HDPE polyethyleen. Dit type kunststof is bijzonder goed bestemd tegen afvalwater verontreinigd met vetzuren. Deze vetafscheider voldoet aan de NEN-EN 1825 normen, is voorzien van een CE-verklaring en heeft een capaciteit van 2 liter per seconde. De vetafscheider wordt geleverd met een standaard deksel. Optioneel met geknevelde, stankdichte deksels. De hoogte van de schacht is bij de montage nog in te korten.
Deze vetafscheider is geschikt voor opstelling in de grond voor maximaal 1 spoelbak en 1 vaatwasser.
Specificaties:
Capaciteit: 2 liter per seconde
Aansluit diameter in/uitlaat: Ø 110 
Verval tussen in/uitlaat: 70mm
Opslag slib: 200 liter
Opslag vet: 125 liter
Gewicht: 175 kilo
Afmetingen: Lengte 1500mm x Breedte 750mm x Hoogte 1620mm
 
       
       
        
        
        
              
      
            
            
       
        
        
        
              
      
            
            
       
        
        
        
              
      
            
            
      We streven ernaar om binnen 24 uur bij u terug te komen. Liever nog sneller geholpen? Neem dan gerust telefonisch contact met ons op via +31 (0)10 785 20 46.